Подъемник строительный ПС-500 "Умелец"
Хиты продаж
Подъемник строительный Умелец ПС-500 предназначен для подъема, спуска и перемещения внутрь проемов зданий и сооружений различных строительных материалов и оборудования массой до 500кг. Допускается установка подъемника на крышах зданий или сооружений при условии защиты его от атмосферных осадков.
Кран в окно Умелец ПС-500 является переставным грузоподъемным механизмом, перемещаемым с одного участка работы на другой вручную. Для удобства перемещения и установки в рабочем положении подъемник Умелец оснащен: на стойках задних - опорными колесами с фиксаторами; на стойках передних - регулировочными винтовыми опорами (домкратами).
После подъема груз затягивается по пролетной балке. Затягивание груза осуществляется вручную за ручку-фиксатор 12. После затягивания груз опускается на основание (пол, перекрытие), на котором стоит Умелец - между контейнером с противовесами и передней стойкой.
Допускается эксплуатация строительного подъемника Умелец при температуре окружающей среды не выше +40С и не ниже -40С и влажности 75%. В части воздействия климатических факторов подъемник соответствует У2 по ГОСТ 15150.
Кран Умелец ПС-500 имеет оригинальную конструкцию с вылетом стрелы 1,82м и колесами позволяющими легко передвигать кран, уникальным тросоукладчиком, обеспечивающим длительный срок службы каната, а также высокопрочным покрытием, позволяющим обеспечить защиту от коррозии в течение всего срока службы.
Кран в окно Умелец поставляется в разобранном виде. Комплект поставки также включает в себя документацию: паспорт на электродвигатель, паспорт и руководство по эксплуатации на подъемник Умелец ПС-500. Порядок сборки указан в руководстве по эксплуатации. Руководство по эксплуатации крана Умелец ПС-500 совмещено с паспортом.
Подъемник Умелец не допускается эксплуатировать во взрывоопасных и пожароопасных средах, в помещениях, насыщенных парами кислот, щелочей и других веществ в концентрациях, приводящих к коррозии металла и разрушающих изоляцию электропроводки, а также для подъема и перемещения людей, ядовитых веществ, жидкого и раскаленного металла.
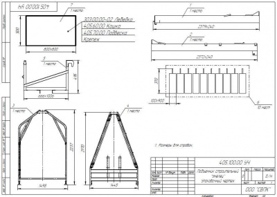
Подъемник Умелец ПС-500 состоит из следующих основных узлов и деталей: кошки 10 с подвеской 11, балок 3 и 4, стойки передней 5, стойки задней 6, стяжек 7, 8 и 13, лебедки электрической 1. Металлоконструкции подъемника крепятся между собой стандартными крепежными изделиями, сборочными единицами и деталями, входящими в комплектацию подъемника. Устойчивость подъемника во время эксплуатации обеспечивается противовесами в количестве 10 штук.
Балки 3 и 4 изготовлены из двутавра №16 с приварными фланцами для крепления между собой в единую пролетную балку болтовым соединением М16 и к стойкам болтовым соединением М12. Стойки и стяжки выполнены из труб круглого сечения. Стяжки крепятся к стойкам и пролетной балке болтовым соединением М10.
Лебедка крепится на задней стойке болтовым соединением М12. Лебедка состоит из корпуса, образованного двумя щеками (соединенными между собой стяжками), электродвигателя, барабана и зубчатых колес. Под барабаном расположен прижимнй ролик для обеспечения более качественной навивки каната. Вращающийся барабан огражден защитным кожухом. На щеке закреплен электрический пульт управления. От пульта отходит кабель с кнопочным тельферным постом и микровыключателем, который в процессе эксплуатации крепится к передвижной кошке 10.
Рабочим органом подъемника является подвеска 11 с кошкой 10. Подъем/опускание подвески осуществляется лебедкой, а перемещение кошки по пролетной балке осуществляется вручную. Кошка имеет специальный фиксатор, который зацепляется за крюк, расположенный на конце балки, и не позволяет кошке перемещаться во время подъема/опускания подвески.
Также на схеме отмечены: 2 - струна; 9 - контейнер; 12 - рычаг тяговый; 13 - стяжка контейнера. Прочие позиции - крепежные изделия.
В состав электрооборудования крана Умелец входят: электродвигатель со встроенным электромагнитным тормозом, пост тельферный, микровыключатель, пускатели, выключатель автоматический. Микровыключатель расположен на кошке и отключает электродвигатель при подъеме подвески до крайнего верхнего рабочего положения.
Включение лебедки осуществляется автоматическим выключателем на пульте лебедки, а управление - постом кнопочным тельферным.
Кран Умелец ПС-500 имеет срок гарантии 12 месяцев со дня ввода подъемника в эксплуатацию, но не более 18 месяцев со дня отгрузки с предприятия-изготовителя. Указанный срок гарантии не распространяется на грузовой канат. Средний срок службы подъемника строительного Умелец не менее 36 месяцев при условии надлежащей эксплуатации в соответствии с требованиями паспорта/ руководства по эксплуатации.
Кран в окно Умелец ПС-500 является переставным грузоподъемным механизмом, перемещаемым с одного участка работы на другой вручную. Для удобства перемещения и установки в рабочем положении подъемник Умелец оснащен: на стойках задних - опорными колесами с фиксаторами; на стойках передних - регулировочными винтовыми опорами (домкратами).
После подъема груз затягивается по пролетной балке. Затягивание груза осуществляется вручную за ручку-фиксатор 12. После затягивания груз опускается на основание (пол, перекрытие), на котором стоит Умелец - между контейнером с противовесами и передней стойкой.
Допускается эксплуатация строительного подъемника Умелец при температуре окружающей среды не выше +40С и не ниже -40С и влажности 75%. В части воздействия климатических факторов подъемник соответствует У2 по ГОСТ 15150.
Кран Умелец ПС-500 имеет оригинальную конструкцию с вылетом стрелы 1,82м и колесами позволяющими легко передвигать кран, уникальным тросоукладчиком, обеспечивающим длительный срок службы каната, а также высокопрочным покрытием, позволяющим обеспечить защиту от коррозии в течение всего срока службы.
Кран в окно Умелец поставляется в разобранном виде. Комплект поставки также включает в себя документацию: паспорт на электродвигатель, паспорт и руководство по эксплуатации на подъемник Умелец ПС-500. Порядок сборки указан в руководстве по эксплуатации. Руководство по эксплуатации крана Умелец ПС-500 совмещено с паспортом.
Подъемник Умелец не допускается эксплуатировать во взрывоопасных и пожароопасных средах, в помещениях, насыщенных парами кислот, щелочей и других веществ в концентрациях, приводящих к коррозии металла и разрушающих изоляцию электропроводки, а также для подъема и перемещения людей, ядовитых веществ, жидкого и раскаленного металла.
Подъемник Умелец ПС-500 состоит из следующих основных узлов и деталей: кошки 10 с подвеской 11, балок 3 и 4, стойки передней 5, стойки задней 6, стяжек 7, 8 и 13, лебедки электрической 1. Металлоконструкции подъемника крепятся между собой стандартными крепежными изделиями, сборочными единицами и деталями, входящими в комплектацию подъемника. Устойчивость подъемника во время эксплуатации обеспечивается противовесами в количестве 10 штук.
Балки 3 и 4 изготовлены из двутавра №16 с приварными фланцами для крепления между собой в единую пролетную балку болтовым соединением М16 и к стойкам болтовым соединением М12. Стойки и стяжки выполнены из труб круглого сечения. Стяжки крепятся к стойкам и пролетной балке болтовым соединением М10.
Лебедка крепится на задней стойке болтовым соединением М12. Лебедка состоит из корпуса, образованного двумя щеками (соединенными между собой стяжками), электродвигателя, барабана и зубчатых колес. Под барабаном расположен прижимнй ролик для обеспечения более качественной навивки каната. Вращающийся барабан огражден защитным кожухом. На щеке закреплен электрический пульт управления. От пульта отходит кабель с кнопочным тельферным постом и микровыключателем, который в процессе эксплуатации крепится к передвижной кошке 10.
Рабочим органом подъемника является подвеска 11 с кошкой 10. Подъем/опускание подвески осуществляется лебедкой, а перемещение кошки по пролетной балке осуществляется вручную. Кошка имеет специальный фиксатор, который зацепляется за крюк, расположенный на конце балки, и не позволяет кошке перемещаться во время подъема/опускания подвески.
Также на схеме отмечены: 2 - струна; 9 - контейнер; 12 - рычаг тяговый; 13 - стяжка контейнера. Прочие позиции - крепежные изделия.
В состав электрооборудования крана Умелец входят: электродвигатель со встроенным электромагнитным тормозом, пост тельферный, микровыключатель, пускатели, выключатель автоматический. Микровыключатель расположен на кошке и отключает электродвигатель при подъеме подвески до крайнего верхнего рабочего положения.
Включение лебедки осуществляется автоматическим выключателем на пульте лебедки, а управление - постом кнопочным тельферным.
Кран Умелец ПС-500 имеет срок гарантии 12 месяцев со дня ввода подъемника в эксплуатацию, но не более 18 месяцев со дня отгрузки с предприятия-изготовителя. Указанный срок гарантии не распространяется на грузовой канат. Средний срок службы подъемника строительного Умелец не менее 36 месяцев при условии надлежащей эксплуатации в соответствии с требованиями паспорта/ руководства по эксплуатации.
Подробнее
291 000 ₽
Наличие уточняйте
-
+
В корзину
Обращаем Ваше внимание на то, что приведенные цены, характеристики и фотографии товаров носят исключительно ознакомительный характер и не являются публичной офертой, определяемой пунктом 2 статьи 437 Гражданского кодекса Российской Федерации.
Описание
Подъемник строительный Умелец ПС-500 предназначен для подъема, спуска и перемещения внутрь проемов зданий и сооружений различных строительных материалов и оборудования массой до 500кг. Допускается установка подъемника на крышах зданий или сооружений при условии защиты его от атмосферных осадков.
Кран в окно Умелец ПС-500 является переставным грузоподъемным механизмом, перемещаемым с одного участка работы на другой вручную. Для удобства перемещения и установки в рабочем положении подъемник Умелец оснащен: на стойках задних - опорными колесами с фиксаторами; на стойках передних - регулировочными винтовыми опорами (домкратами).
После подъема груз затягивается по пролетной балке. Затягивание груза осуществляется вручную за ручку-фиксатор 12. После затягивания груз опускается на основание (пол, перекрытие), на котором стоит Умелец - между контейнером с противовесами и передней стойкой.
Допускается эксплуатация строительного подъемника Умелец при температуре окружающей среды не выше +40С и не ниже -40С и влажности 75%. В части воздействия климатических факторов подъемник соответствует У2 по ГОСТ 15150.
Кран Умелец ПС-500 имеет оригинальную конструкцию с вылетом стрелы 1,82м и колесами позволяющими легко передвигать кран, уникальным тросоукладчиком, обеспечивающим длительный срок службы каната, а также высокопрочным покрытием, позволяющим обеспечить защиту от коррозии в течение всего срока службы.
Кран в окно Умелец поставляется в разобранном виде. Комплект поставки также включает в себя документацию: паспорт на электродвигатель, паспорт и руководство по эксплуатации на подъемник Умелец ПС-500. Порядок сборки указан в руководстве по эксплуатации. Руководство по эксплуатации крана Умелец ПС-500 совмещено с паспортом.
Подъемник Умелец не допускается эксплуатировать во взрывоопасных и пожароопасных средах, в помещениях, насыщенных парами кислот, щелочей и других веществ в концентрациях, приводящих к коррозии металла и разрушающих изоляцию электропроводки, а также для подъема и перемещения людей, ядовитых веществ, жидкого и раскаленного металла.
Подъемник Умелец ПС-500 состоит из следующих основных узлов и деталей: кошки 10 с подвеской 11, балок 3 и 4, стойки передней 5, стойки задней 6, стяжек 7, 8 и 13, лебедки электрической 1. Металлоконструкции подъемника крепятся между собой стандартными крепежными изделиями, сборочными единицами и деталями, входящими в комплектацию подъемника. Устойчивость подъемника во время эксплуатации обеспечивается противовесами в количестве 10 штук.
Балки 3 и 4 изготовлены из двутавра №16 с приварными фланцами для крепления между собой в единую пролетную балку болтовым соединением М16 и к стойкам болтовым соединением М12. Стойки и стяжки выполнены из труб круглого сечения. Стяжки крепятся к стойкам и пролетной балке болтовым соединением М10.
Лебедка крепится на задней стойке болтовым соединением М12. Лебедка состоит из корпуса, образованного двумя щеками (соединенными между собой стяжками), электродвигателя, барабана и зубчатых колес. Под барабаном расположен прижимнй ролик для обеспечения более качественной навивки каната. Вращающийся барабан огражден защитным кожухом. На щеке закреплен электрический пульт управления. От пульта отходит кабель с кнопочным тельферным постом и микровыключателем, который в процессе эксплуатации крепится к передвижной кошке 10.
Рабочим органом подъемника является подвеска 11 с кошкой 10. Подъем/опускание подвески осуществляется лебедкой, а перемещение кошки по пролетной балке осуществляется вручную. Кошка имеет специальный фиксатор, который зацепляется за крюк, расположенный на конце балки, и не позволяет кошке перемещаться во время подъема/опускания подвески.
Также на схеме отмечены: 2 - струна; 9 - контейнер; 12 - рычаг тяговый; 13 - стяжка контейнера. Прочие позиции - крепежные изделия.
В состав электрооборудования крана Умелец входят: электродвигатель со встроенным электромагнитным тормозом, пост тельферный, микровыключатель, пускатели, выключатель автоматический. Микровыключатель расположен на кошке и отключает электродвигатель при подъеме подвески до крайнего верхнего рабочего положения.
Включение лебедки осуществляется автоматическим выключателем на пульте лебедки, а управление - постом кнопочным тельферным.
Кран Умелец ПС-500 имеет срок гарантии 12 месяцев со дня ввода подъемника в эксплуатацию, но не более 18 месяцев со дня отгрузки с предприятия-изготовителя. Указанный срок гарантии не распространяется на грузовой канат. Средний срок службы подъемника строительного Умелец не менее 36 месяцев при условии надлежащей эксплуатации в соответствии с требованиями паспорта/ руководства по эксплуатации.
Кран в окно Умелец ПС-500 является переставным грузоподъемным механизмом, перемещаемым с одного участка работы на другой вручную. Для удобства перемещения и установки в рабочем положении подъемник Умелец оснащен: на стойках задних - опорными колесами с фиксаторами; на стойках передних - регулировочными винтовыми опорами (домкратами).
После подъема груз затягивается по пролетной балке. Затягивание груза осуществляется вручную за ручку-фиксатор 12. После затягивания груз опускается на основание (пол, перекрытие), на котором стоит Умелец - между контейнером с противовесами и передней стойкой.
Допускается эксплуатация строительного подъемника Умелец при температуре окружающей среды не выше +40С и не ниже -40С и влажности 75%. В части воздействия климатических факторов подъемник соответствует У2 по ГОСТ 15150.
Кран Умелец ПС-500 имеет оригинальную конструкцию с вылетом стрелы 1,82м и колесами позволяющими легко передвигать кран, уникальным тросоукладчиком, обеспечивающим длительный срок службы каната, а также высокопрочным покрытием, позволяющим обеспечить защиту от коррозии в течение всего срока службы.
Кран в окно Умелец поставляется в разобранном виде. Комплект поставки также включает в себя документацию: паспорт на электродвигатель, паспорт и руководство по эксплуатации на подъемник Умелец ПС-500. Порядок сборки указан в руководстве по эксплуатации. Руководство по эксплуатации крана Умелец ПС-500 совмещено с паспортом.
Подъемник Умелец не допускается эксплуатировать во взрывоопасных и пожароопасных средах, в помещениях, насыщенных парами кислот, щелочей и других веществ в концентрациях, приводящих к коррозии металла и разрушающих изоляцию электропроводки, а также для подъема и перемещения людей, ядовитых веществ, жидкого и раскаленного металла.
Подъемник Умелец ПС-500 состоит из следующих основных узлов и деталей: кошки 10 с подвеской 11, балок 3 и 4, стойки передней 5, стойки задней 6, стяжек 7, 8 и 13, лебедки электрической 1. Металлоконструкции подъемника крепятся между собой стандартными крепежными изделиями, сборочными единицами и деталями, входящими в комплектацию подъемника. Устойчивость подъемника во время эксплуатации обеспечивается противовесами в количестве 10 штук.
Балки 3 и 4 изготовлены из двутавра №16 с приварными фланцами для крепления между собой в единую пролетную балку болтовым соединением М16 и к стойкам болтовым соединением М12. Стойки и стяжки выполнены из труб круглого сечения. Стяжки крепятся к стойкам и пролетной балке болтовым соединением М10.
Лебедка крепится на задней стойке болтовым соединением М12. Лебедка состоит из корпуса, образованного двумя щеками (соединенными между собой стяжками), электродвигателя, барабана и зубчатых колес. Под барабаном расположен прижимнй ролик для обеспечения более качественной навивки каната. Вращающийся барабан огражден защитным кожухом. На щеке закреплен электрический пульт управления. От пульта отходит кабель с кнопочным тельферным постом и микровыключателем, который в процессе эксплуатации крепится к передвижной кошке 10.
Рабочим органом подъемника является подвеска 11 с кошкой 10. Подъем/опускание подвески осуществляется лебедкой, а перемещение кошки по пролетной балке осуществляется вручную. Кошка имеет специальный фиксатор, который зацепляется за крюк, расположенный на конце балки, и не позволяет кошке перемещаться во время подъема/опускания подвески.
Также на схеме отмечены: 2 - струна; 9 - контейнер; 12 - рычаг тяговый; 13 - стяжка контейнера. Прочие позиции - крепежные изделия.
В состав электрооборудования крана Умелец входят: электродвигатель со встроенным электромагнитным тормозом, пост тельферный, микровыключатель, пускатели, выключатель автоматический. Микровыключатель расположен на кошке и отключает электродвигатель при подъеме подвески до крайнего верхнего рабочего положения.
Включение лебедки осуществляется автоматическим выключателем на пульте лебедки, а управление - постом кнопочным тельферным.
Кран Умелец ПС-500 имеет срок гарантии 12 месяцев со дня ввода подъемника в эксплуатацию, но не более 18 месяцев со дня отгрузки с предприятия-изготовителя. Указанный срок гарантии не распространяется на грузовой канат. Средний срок службы подъемника строительного Умелец не менее 36 месяцев при условии надлежащей эксплуатации в соответствии с требованиями паспорта/ руководства по эксплуатации.
Характеристики
|
Грузоподъемность, тонн
|
0.5 |
|
Высота подъема, м
|
50/100 |
|
Напряжение питания, В
|
3x380 |
|
Мощность двигателя, кВт
|
1.7 |
|
Вылет стрелы, м
|
1.82 |
|
Макс. скорость подъема (опускания) груза, м/мин
|
17.0 |
|
Диаметр каната, мм
|
5.5 |
|
Режим работы по ГОСТ 25835
|
3М/В3 |
|
Габаритные размеры, мм
|
см. схему |
|
Масса противовеса, кг
|
700 |
|
Масса, кг
|
424 |








